• Kymo Kea Houses - Nevermind Property Management

    KYMO KEA HOUSES

Κύμο, θεά των κυμάτων, μία από τις πενήντα Νηρηίδες — τις θαλάσσιες νύμφες της ελληνικής μυθολογίας.

Η Κύμο ήταν κόρη του «Γέροντα της Θάλασσας», Νηρέα, και της Ωκεανίδας Δωρίδας, καθώς και εγγονή του Τιτάνα Ωκεανού. Εμπνευσμένα από την αιώνια σύνδεσή της με τη θάλασσα, τα Kymo Kea Houses εκφράζουν την αρμονία, τη γαλήνη και την διαχρονική ομορφιά του Αιγαίου.

Βρίσκονται στον Οτζιά, μόλις 100 μέτρα από την παραλία, και αποτελούνται από δύο κομψά πέτρινα σπίτια με θέα στον κόλπο του Οτζιά και το απέραντο γαλάζιο του Αιγαίου. Τοποθετημένα σε προνομιακή θέση, οι βίλες προσφέρουν μαγευτική πανοραμική θέα και μια μοναδική αίσθηση ιδιωτικότητας και ηρεμίας.


Αριθμός άδειας: 1245938

Kymo Kea House 1 Kymo Kea House 2

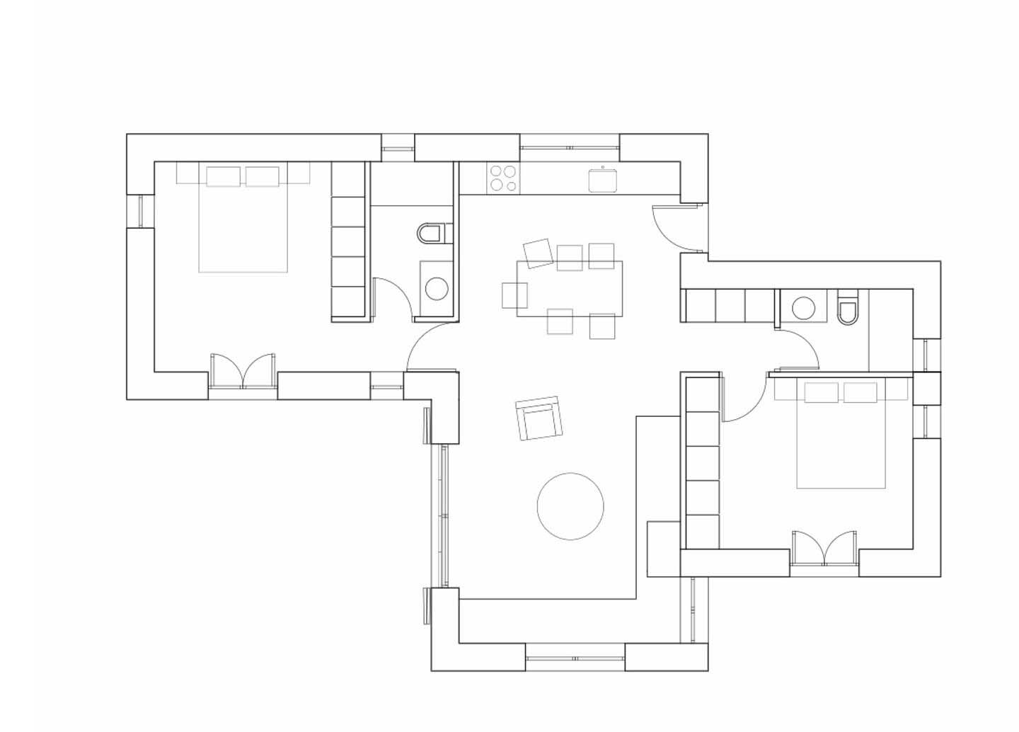
Kymo Kea House 1

Το κυρίως σπίτι

Kymo Kea Houses - Nevermind Property Management

Βρίσκεται σε υπερυψωμένο ισόγειο επίπεδο και διαθέτει:

  • Ένα κύριο υπνοδωμάτιο με ιδιωτικό μπάνιο και καμπίνα ντους
  • Ένα υπνοδωμάτιο με δύο μονά κρεβάτια και βεράντα με θέα στη θάλασσα
  • Ένα μπάνιο με καμπίνα ντους
  • Ενιαίος χώρος καθιστικού, κουζίνας και τραπεζαρίας με πρόσβαση στην βεράντα

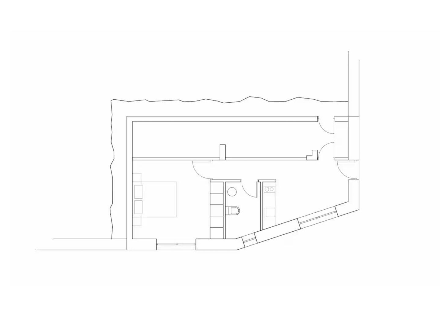
Ο ξενώνας

Kymo Kea Houses - Nevermind Property Management

Κατεβαίνοντας μερικά σκαλιά, θα βρείτε έναν ανεξάρτητο ξενώνα, πλήρως εξοπλισμένο με:

  • Μικρή κουζίνα
  • Ένα υπνοδωμάτιο με διπλό κρεβάτι
  • Σύγχρονο μπάνιο με καμπίνα ντους

Το Kymo Kea House 1 είναι μια μοναδική κατοικία, ιδανική για μεγάλες οικογένειες ή παρέες φίλων, σχεδιασμένη με στόχο να προσφέρει στιγμές απόλυτης χαλάρωσης. Τα κρυστάλλινα νερά της παραλίας του Οτζιά, μόλις λίγα βήματα μακριά, σε συνδυασμό με την ιδιωτική πισίνα, το ήρεμο περιβάλλον και τις υψηλής ποιότητας υπηρεσίες που προσφέρουμε, καθιστούν το Kymo House 1 έναν εξαιρετικό προορισμό για τις καλοκαιρινές διακοπές.

Εδώ, η πολυτέλεια συναντά την απλότητα και κάθε στιγμή διαμορφώνεται από τον ρυθμό της θάλασσας.

Παροχές

  • Κλιματισμός
  • Αλλαγή λευκών ειδών και πετσετών κάθε 3 ημέρες
  • Προϊόντα περιποίησης μπάνιου
  • Καφετιέρα
  • Σκεύη κουζίνας
  • Ιδιωτικός χώρος εργασίας
  • Δωρεάν Wi-Fi
  • Κουτί πρώτων βοηθειών
  • Πυροσβεστήρας
  • Δωρεάν χώρος στάθμευσης
  • Πλήρως εξοπλισμένη κουζίνα με ηλεκτρική εστία και φούρνο
  • Πιστολάκι μαλλιών
  • Σίδερο
  • Βραστήρας
  • Εξωτερική τραπεζαρία
  • Εξωτερικό ντους
  • Ιδιωτική πισίνα
  • Ψυγείο με καταψύκτη
  • Ανιχνευτής καπνού
  • Τηλεόραση HD
  • Πλυντήριο ρούχων
  • Καλάθι καλωσορίσματος
  • Καθημερινή υπηρεσία καθαριότητας
  • Κούνια μωρού / κατόπιν αιτήματος
  • Ενοικίαση αυτοκινήτου / κατόπιν αιτήματος
  • Μασάζ / κατόπιν αιτήματος
  • Ιδιωτική εκδρομή με σκάφος / κατόπιν αιτήματος
  • Καταδύσεις (Scuba Diving) / κατόπιν αιτήματος

Επιλογές κράτησης

whats app icon ΚΑΝΤΕ ΚΡΑΤΗΣΗ whats app icon (0030) 6978180000 Telephone icon info@nevermindpm.com Telephone icon (0030) 6978180000

Kymo Kea House 2

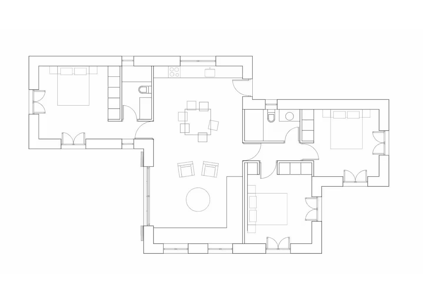
Το κυρίως σπίτι

Kymo Kea Houses - Nevermind Property Management

Βρίσκεται σε υπερυψωμένο ισόγειο επίπεδο και διαθέτει:

  • Ένα κύριο υπνοδωμάτιο με ιδιωτικό μπάνιο και καμπίνα ντους
  • Ένα υπνοδωμάτιο με δύο μονά κρεβάτια και βεράντα με θέα στη θάλασσα
  • Ένα υπνοδωμάτιο με διπλό κρεβάτι και βεράντα με θέα στη θάλασσα
  • Ένα μπάνιο με καμπίνα ντους
  • Ανοιχτή διάταξη καθιστικού, κουζίνας και τραπεζαρίας με πρόσβαση στην βεράντα

Ο ξενώνας

Kymo Kea Houses - Nevermind Property Management

Κατεβαίνοντας μερικά σκαλιά, θα βρείτε έναν ανεξάρτητο ξενώνα, πλήρως εξοπλισμένο με:

  • Μικρή κουζίνα
  • Ένα υπνοδωμάτιο με διπλό κρεβάτι
  • Σύγχρονο μπάνιο με καμπίνα ντους

Το Kymo Kea House 2 αποτελεί ένα φιλόξενο καταφύγιο, ιδανικό για μεγάλες οικογένειες ή παρέες φίλων που αναζητούν χώρο, άνεση και ποιοτικό χρόνο μαζί. Βρίσκεται μόλις λίγα βήματα από τα κρυστάλλινα νερά της παραλίας του Οτζιά, συνδυάζοντας ένα ήρεμο περιβάλλον με ιδιωτική πισίνα και προσεκτικά επιλεγμένες υπηρεσίες, δημιουργώντας μια πραγματικά χαλαρωτική εμπειρία διακοπών.

Σχεδιασμένο για ξεκούραστες καλοκαιρινές στιγμές, το σπίτι συνδυάζει διακριτική πολυτέλεια με φυσική, ανεπιτήδευτη ατμόσφαιρα, όπου κάθε μέρα κυλά ήρεμα στον ρυθμό και τους ήχους της θάλασσας.

Παροχές

  • Κλιματισμός
  • Αλλαγή λευκών ειδών και πετσετών κάθε 3 ημέρες
  • Προϊόντα μπάνιου
  • Καφετιέρα
  • Σκεύη κουζίνας
  • Ιδιωτικός χώρος εργασίας
  • Δωρεάν Wi-Fi
  • Κουτί πρώτων βοηθειών
  • Πυροσβεστήρας
  • Δωρεάν χώρος στάθμευσης
  • Πλήρως εξοπλισμένη κουζίνα με ηλεκτρική εστία και φούρνο
  • Πιστολάκι μαλλιών
  • Σίδερο
  • Βραστήρας
  • Εξωτερική τραπεζαρία
  • Εξωτερικό ντους
  • Ιδιωτική πισίνα
  • Ψυγείο με καταψύκτη
  • Ανιχνευτής καπνού
  • Τηλεόραση HD
  • Πλυντήριο ρούχων
  • Καλάθι καλωσορίσματος
  • Καθημερινή υπηρεσία καθαριότητας
  • Κούνια μωρού / κατόπιν αιτήματος
  • Ενοικίαση αυτοκινήτου / κατόπιν αιτήματος
  • Μασάζ / κατόπιν αιτήματος
  • Ιδιωτική εκδρομή με σκάφος / κατόπιν αιτήματος
  • Καταδύσεις (Scuba Diving) / κατόπιν αιτήματος

Επιλογές κράτησης

whats app icon ΚΑΝΤΕ ΚΡΑΤΗΣΗ whats app icon (0030) 6978180000 Telephone icon info@nevermindpm.com Telephone icon (0030) 6978180000